Электрокаменка скрытой установки R 33 — нестандартный взгляд на печь для сауны. Каменка устанавливается под лавками. Вода подается дистанционно, а пар выходит за спинами посетителей.
У такого решения несколько достоинств. Во-первых, экономия места в сауне. Во-вторых прямой контакт с печью невозможен, что увеличивает безопасность. В-третьих, отсутствие жесткого инфраизлучения, которое исходит от нагретых металлических частей электрокаменки.
В серию входят модели мощностью: 4,5 кВт, 6 кВт, 7,5 кВт, 9 кВт, 10,5 кВт, 12 кВт. Для помещения размером от 4 до 18 м3 в зависимости от модели.
Если помещение большего размера — несколько каменок могут работать синхронно.
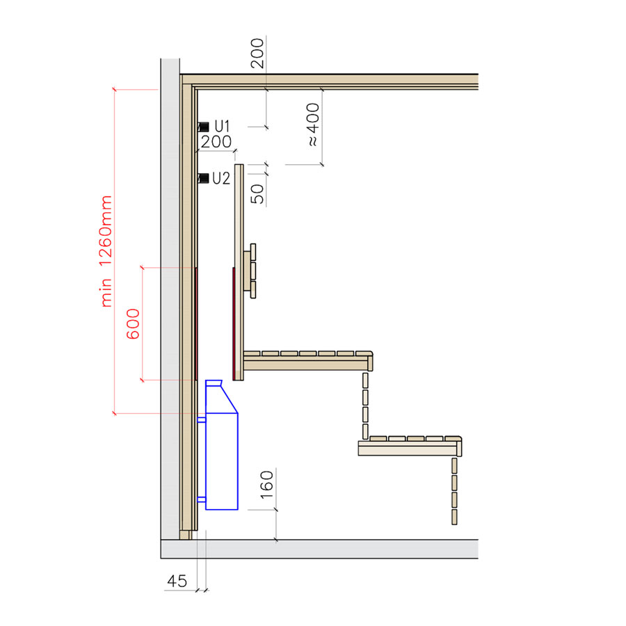
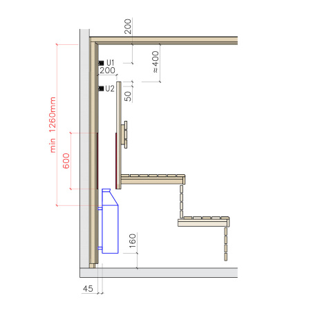
- Минимальные расстояния от стенок 7 см.
- Безопасное расстояние до переднего нижнего полка, мм: 45
- Безопасное расстояние до пола, мм: 160
- Безопасное расстояние до потолка, мм: 1260
- Минимальная высота парильни, см: 200
- Время нагрева сауны до 80 °С, мин: 40-90
- Настенная подлавочная установка.
- Сечение проводов, кв.мм: 5х2,5
Для управления печью необходимо приобрести пульт управления. Мы рекомендуем Fasel.
Надежные электрические соединения. Для печей в зоне нагрева используются только жесткие одножильные провода большого сечения, способные выдерживать высокие токи.
В печах высокой мощности приеняются керамические клеммные колодки. Никаких быстрозажимных коннекторов, только винтовые соединения. Все соединения выполнены жесткими шинами без изоляции. Как показывает практика, со временем изоляция становится хрупкой и могут возникнуть проблемы.
Мягкий пар без жесткого жара. Горячие металлические элементы электрокаменки испускают жесткое инфраизлучение. Оно ощущается на коже, как неприятное жжение. В данном случае электрокаменка спрятана поэтому и жжения от неё нет. Один мягкий и комфортный пар. Дистанционная подача воды. На электрокаменку можно поддавать воду. Для этого в комплекте есть специальный лоток. Защитная решетка на место выхода пара.
Для покупки товара в нашем интернет-магазине выберите понравившийся товар и добавьте его в корзину. Далее перейдите в Корзину и нажмите на «Оформить заказ» или «Быстрый заказ».
Когда оформляете быстрый заказ, напишите ФИО, телефон и e-mail. Вам перезвонит менеджер и уточнит условия заказа. По результатам разговора вам придет подтверждение оформления товара на почту или через СМС. Теперь останется только ждать доставки и радоваться новой покупке.
Оформление заказа в стандартном режиме выглядит следующим образом. Заполняете полностью форму по последовательным этапам: адрес, способ доставки, оплаты, данные о себе. Советуем в комментарии к заказу написать информацию, которая поможет курьеру вас найти. Нажмите кнопку «Оформить заказ».
Доставка по Москве
- Бесплатно при покупке товара от 35 000 руб.
- В остальных случаях стоимость доставки в пределах МКАД составит 2400 руб.
- За пределами МКАД стоимость доставки составит 2400 руб. + 100 руб./км. (При покупке товара от 35 000 руб. доставка 100р./км)
- Стоимость доставки материалов по договору отделки рассчитывается индивидуально.

