Электрокаменка скрытой установки UE 35 — нестандартный взгляд на печь для сауны. Каменка устанавливается под лавками. Вода подается дистанционно, а пар выходит за спинами посетителей.
У такого решения несколько достоинств. Во-первых, экономия места в сауне. Во-вторых прямой контакт с печью невозможен, что увеличивает безопасность. В-третьих, отсутствие жесткого инфраизлучения, которое исходит от нагретых металлических частей электрокаменки.
В серию входят модели мощностью: 4,5 кВт, 6 кВт, 7,5 кВт, 9 кВт, 10,5 кВт, 12 кВт, 14 кВт. Для помещения размером от 4 до 20 м3 в зависимости от модели. Если помещение большего размера — несколько каменок могут работать синхронно.
Минимальные расстояния от стенок 10 см.
Вмещает 20 кг камней в версии UE 35/100 и 25 кг у UE 35/132.
Для управления печью необходимо приобрести пульт управления. Мы рекомендуем Fasel.
Надежные электрические соединения. Для печей в зоне нагрева используются только жесткие одножильные провода большого сечения, способные выдерживать высокие токи. В печах высокой мощности применяются керамические клеммные колодки. Никаких быстрозажимных коннекторов, только винтовые соединения. Все соединения выполнены жесткими шинами без изоляции.
Мягкий пар без жесткого жара. Горячие металлические элементы электрокаменки испускают жесткое инфраизлучение. Оно ощущается на коже, как неприятное жжение. В данном случае электрокаменка спрятана поэтому и жжения от неё нет.
Дистанционная подача воды. На электрокаменку можно поддавать воду. Для этого в комплекте есть специальный лоток.
- Сечение проводов, кв.мм: 5х2,5
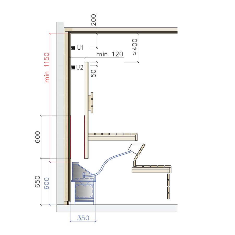
- Безопасное расстояние до переднего нижнего полка, мм: 120
- Безопасное расстояние до потолка, мм: 1150
- Минимальная высота парильни, см: 200
- Время нагрева сауны до 80 °С, мин: 40-90
Для покупки товара в нашем интернет-магазине выберите понравившийся товар и добавьте его в корзину. Далее перейдите в Корзину и нажмите на «Оформить заказ» или «Быстрый заказ».
Когда оформляете быстрый заказ, напишите ФИО, телефон и e-mail. Вам перезвонит менеджер и уточнит условия заказа. По результатам разговора вам придет подтверждение оформления товара на почту или через СМС. Теперь останется только ждать доставки и радоваться новой покупке.
Оформление заказа в стандартном режиме выглядит следующим образом. Заполняете полностью форму по последовательным этапам: адрес, способ доставки, оплаты, данные о себе. Советуем в комментарии к заказу написать информацию, которая поможет курьеру вас найти. Нажмите кнопку «Оформить заказ».
Доставка по Москве
- Бесплатно при покупке товара от 35 000 руб.
- В остальных случаях стоимость доставки в пределах МКАД составит 2400 руб.
- За пределами МКАД стоимость доставки составит 2400 руб. + 100 руб./км. (При покупке товара от 35 000 руб. доставка 100р./км)
- Стоимость доставки материалов по договору отделки рассчитывается индивидуально.

