Тонель чугун, портал чугун, облицовка змеевик
Печь «Калита Экстрим РК» - модель 2014 года создана для истинных любителей и ценителей русской бани. Уникальная по своим техническим характеристикам и оригинальная по подбору используемых в ее конструкции материалов, печь объединила в себе все достоинства и преимущества популярных брендов «Калита», «Чародейка» и «Сударушка».
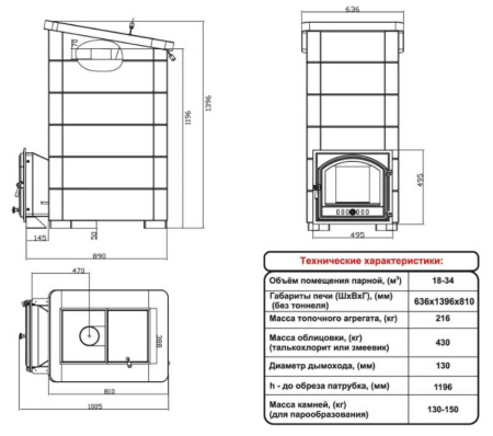
«Калита Экстрим РК» совмещает в себя надежный и проверенный временем чугунный топочный агрегат классической печи «Калита» и каменку из жаропрочной коррозионностойкой, легированной титаном стали AISI 439, вмещающую до 200 кг камней. Прогрев камней до высочайших температур достигается за счет 100%-го обхвата пламенем поверхности каменки встроенной в объем топки.
Эффективная система управления конвекционными потоками горячего воздуха делает эксплуатацию печи “Калита-Экстрим” удобной и комфортной, как в режиме подготовки бани и парного помещения, так и в рабочем режиме пользования ими.
По желанию клиента печь комплектуется «Паровой пушкой» для получения пара, в том числе с камней среднего и нижнего уровней. Суммарная масса печи составляет около 800 кг (топочный агрегат, облицовка, закладка камней в каменку), что обеспечивает очень высокую теплоаккумулирующую способность этой модели.
Особенности печи
- топочный агрегат из высококачественного, устойчивого к высоким температурам чугуна;
- отличные тепловые характеристики и высокий КПД печи за счёт оптимизации траектории и снижения скорости движения дымовых газов;
- специальные рёбра-регистры на стенках топочного агрегата увеличивают площадь теплопередающей поверхности и придают дополнительную прочность;
- уникальная встроенная в объем топки каменка с вертикальной загрузкой, выполненная из жаропрочной коррозионностойкой стали AISI 439, вмещает до 200 кг камней и обеспечивает возможность получения большего объема пара;
- эффективная система управления конвекционными потоками горячего воздуха делает эксплуатацию печи «Калиту-Экстрим» удобной и комфортной. Открыв заслонку механизма, вы получите максимально быстрый прогрев парного помещения, а закрыв ее - направите все тепло печи на нагрев каменного корпуса печи и массива камней для парообразования;
- наличие на каменке дверки также позволяет эффективно управлять распределением тепловой энергии либо на нагрев камней при закрытой дверке, либо на приоритетный нагрев помещения при открытой дверке;
- удлиненный топочный тоннель позволяет топить печь из смежного помещения;
- топочный тоннель из нержавеющей стали либо из чугуна;
- облицовка из природного камня талькохлорита;
- несколько вариантов оформления дверцы топочного тоннеля по выбору покупателя, для этой модели рекомендуется топочный тоннель с механизмом вертикального открывания, который не позволят топочным газам попадать в помещение, как это часто бывает при использовании распашных дверей большого размера;
- большая стеклянная дверь топочного тоннеля позволяет любоваться пламенем и визуально контролировать процесс горения;
Для покупки товара в нашем интернет-магазине выберите понравившийся товар и добавьте его в корзину. Далее перейдите в Корзину и нажмите на «Оформить заказ» или «Быстрый заказ».
Когда оформляете быстрый заказ, напишите ФИО, телефон и e-mail. Вам перезвонит менеджер и уточнит условия заказа. По результатам разговора вам придет подтверждение оформления товара на почту или через СМС. Теперь останется только ждать доставки и радоваться новой покупке.
Оформление заказа в стандартном режиме выглядит следующим образом. Заполняете полностью форму по последовательным этапам: адрес, способ доставки, оплаты, данные о себе. Советуем в комментарии к заказу написать информацию, которая поможет курьеру вас найти. Нажмите кнопку «Оформить заказ».
Доставка по Москве
- Бесплатно при покупке товара от 35 000 руб.
- В остальных случаях стоимость доставки в пределах МКАД составит 2400 руб.
- За пределами МКАД стоимость доставки составит 2400 руб. + 100 руб./км. (При покупке товара от 35 000 руб. доставка 100р./км)
- Стоимость доставки материалов по договору отделки рассчитывается индивидуально.

